3 Bedroom
1,318 sqft
2 Level
None
No Heat
$1,350,000
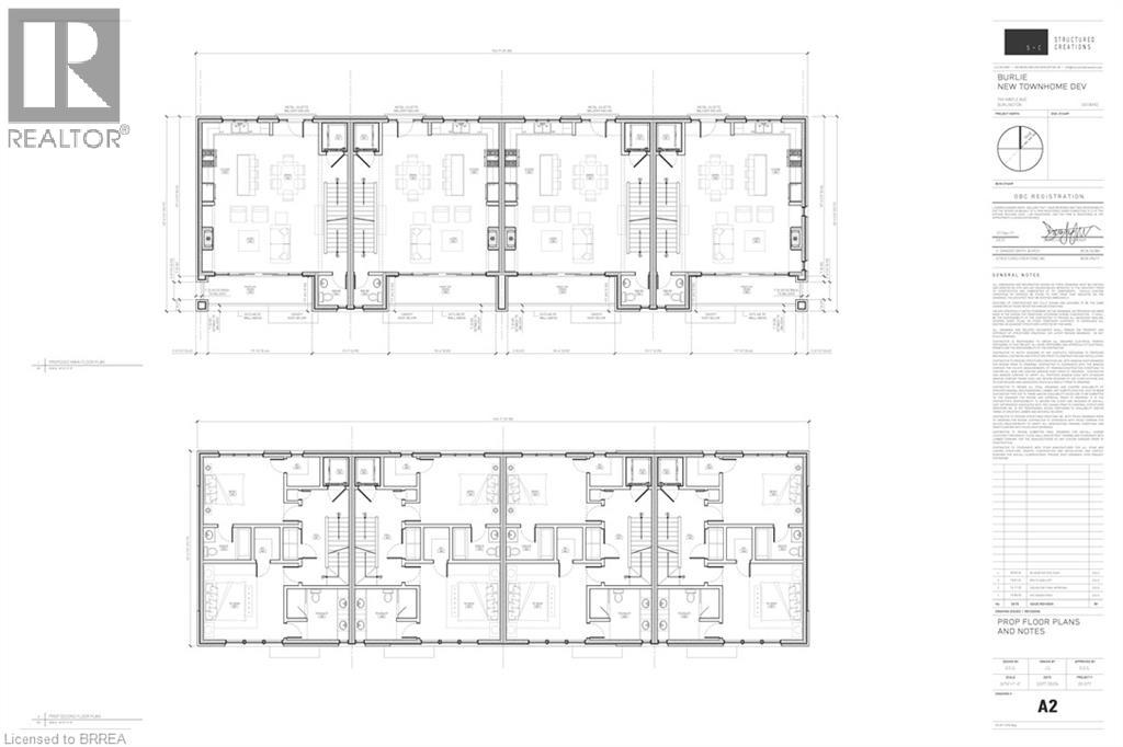
Rare Development Opportunity in Burlington – Fully Approved Luxury Townhome Project An exceptional opportunity to acquire a fully site-plan approved development in one of Burlington’s most desirable locations. This turnkey project allows for an accelerated build timeline with approvals already in place for four luxury townhomes, thoughtfully designed for modern upscale living. Each residence offers approximately 2,600 sq. ft. above grade across three spacious storeys plus a versatile loft, along with an additional ~610 sq. ft. basement. The layouts feature open-concept designs, expansive living areas, and large primary suites with private ensuites, catering to today’s discerning buyers. The inclusion of elevator-ready design enhances long-term value and accessibility, appealing to a broader range of end users. Every home also includes two parking spaces (garage + exterior) and private outdoor areas, adding to the overall lifestyle appeal. Ideally situated near Mapleview Shopping Centre, Maple Park, Burlington Gymnastics Club, Burlington Trampoline & Tumbling, Spencer Smith Park, and Lake Ontario, the property benefits from proximity to waterfront trails, parks, shopping, and vibrant cultural amenities. Key Highlights: Full site-plan approval for 4 luxury townhomes ~2,600 sq. ft. + ~610 sq. ft. basement + loft per unit Elevator-ready design included in approved plans Two parking spaces per residence Private outdoor space for each unit Strong end-user and resale appeal Up to 50% Development Charge (DC) savings Opportunity to leverage HST relief on new construction (savings up to $130,000 per unit.) Streamlined path to construction Comprehensive documents—including architectural plans, municipal correspondence, detailed drawings, and a current survey—are available upon request. (id:24334)
Property Details
|
MLS® Number
|
40818922 |
|
Property Type
|
Single Family |
|
Neigbourhood
|
Maple |
|
Amenities Near By
|
Schools, Shopping |
|
Parking Space Total
|
3 |
Building
|
Bedrooms Above Ground
|
3 |
|
Bedrooms Total
|
3 |
|
Architectural Style
|
2 Level |
|
Basement Development
|
Unfinished |
|
Basement Type
|
Partial (unfinished) |
|
Construction Style Attachment
|
Detached |
|
Cooling Type
|
None |
|
Exterior Finish
|
Vinyl Siding |
|
Heating Type
|
No Heat |
|
Stories Total
|
2 |
|
Size Interior
|
1,318 Sqft |
|
Type
|
House |
|
Utility Water
|
Municipal Water |
Land
|
Acreage
|
No |
|
Land Amenities
|
Schools, Shopping |
|
Sewer
|
Municipal Sewage System |
|
Size Depth
|
163 Ft |
|
Size Frontage
|
70 Ft |
|
Size Total Text
|
Under 1/2 Acre |
|
Zoning Description
|
Mr2 |
Rooms
| Level |
Type |
Length |
Width |
Dimensions |
|
Second Level |
Bedroom |
|
|
11'0'' x 10'0'' |
|
Second Level |
Bedroom |
|
|
11'0'' x 10'0'' |
|
Second Level |
Bedroom |
|
|
14'0'' x 11'0'' |
|
Main Level |
Living Room |
|
|
17'0'' x 11'0'' |
|
Main Level |
Dining Room |
|
|
12'0'' x 11'0'' |
|
Main Level |
Kitchen |
|
|
15'0'' x 11'0'' |
https://www.realtor.ca/real-estate/29602355/759-maple-avenue-burlington